簡介樓承板的結構和使用方法
你對樓承板了解多少呢?有關它的結構和使用方法你知道嗎?不清楚的話就來看看下文小編為您總結的吧!
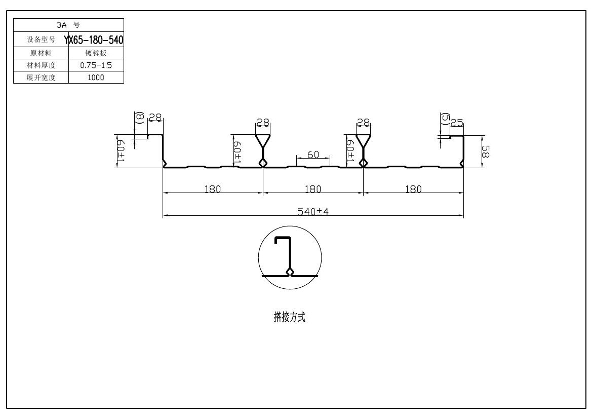
樓承板型材厚有三個規格的,寬和高在的尺度范圍內有多種規格。樓承板鋪設和鋼梁連接起來,板端頭與鋼梁熔透點焊,中間采用栓釘與鋼梁穿透熔焊。樓承板間連接的時候采用專用夾緊鉗進行咬合壓孔。堵頭要使用專用鍍鋅堵頭板與樓承板及鋼梁點焊。如果是帶弧形區樓承板異型裁切采用等離子切割機切割,其切口光滑,表面鍍鋅層完整。

下一篇:淺談樓承板是如何進行鋪設的
上一篇:樓承板的四大特點”
聯系海逵
無錫海逵樓承板是專業樓承板廠家,提供開、縮、閉口樓承板、壓型鋼板、鋼筋桁架樓承板、鋁鎂錳板及CZ型鋼,廠家直銷,價格優惠!

